
適用范圍 Application
1、適用于1區、2區危險場所;
2、適用于ⅡA、ⅡB類.溫度組別為T1~T6的
3、爆炸性氣體環境。
1、Canbe used in hazardous areas:Zone 1 and Zone 2.
2、Can he used in explosive gas atmospheres of
3、Calegory ⅡAand ⅡB where the temperature classifieation is T1~T6.
型號含義 Model implication
主要技術參數 Main technical parameters
1、執行標準:GB3836.1-2000、GB 3836.2-2000、lEC60079
2、防爆標志:ExdⅡBT6
3、額定電壓:AC220V/50Hz
4、防護等級:IP54
5、防腐等級:WF1
6、引人口規格:G1/2”
7、電纜規格:Φ6mm~Φ10mm
8、配裝光源及功率:T8節能燈管
1×40W、2×40W
9、單、雙管帶應急功能參數:充電時間24h
應急起動時間0.3s
應急照明時間90min
產品特點 Features
1、殼體采用鋁合金精密壓鑄成型,表面高壓靜電噴塑;
2、新式結構便于更換燈管,只需擰下端蓋,抽出燈管即可進行更換;
3、節能燈管經國家檢測中心測試節能39.53%;
4、采用電子鎮流器,裝于燈架內,功率因數高達95%以上;
5、應急電源為免維護隔鎳電池組;
6、應急裝置在正常條件下自動充電.斷電時應急燈自動點亮;
7、鋼化玻璃燈罩.不銹鋼外露緊同件;
8、鋼管或電纜布線。
1、The housing is die cast in aluminum alloy,with high voltage static plastic-sprayed surface.
2、Convenience in changing the tube,only ln remove the end cover and tube.
3、The energy-saving lamp tube can save energy as high as 39.53% under the test hy national inspection&test center;
4、It adopts electronic ballast that is mounted in the lamp bracket, the power factor is higher than 95%;
5、The emergency power is provide by maintcnantce-free Cd-Ni haltery.
6、Emergency device is automatically charged under normal conditions,the emergency lamp goes on automatically once power is cut off;
7、Lampshade of tempered glass, stainless exposed fastener.
8、Conduit wiring or cable wiring.
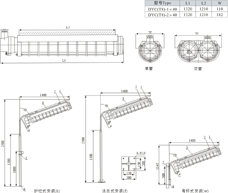
外形及安裝舉例 Outline and mounting example

訂貨須知 Ordering references
按產品型號說明逐條選擇,例:需要T8節能燈管2X40W,護欄式安裝,則產品型號為DYC(T8)-2×40h;
帶應急裝置的DYC(T8)系列隔爆型防爆節能熒光燈,只有吸頂式和吊桿式兩種安裝方式。
Select item by item according to description of product model,for example,ifyou require hi-pin lamp pipe of 2X40W,fence type installation,the product model shall be DYC(T8)-2X40h;
With emergency derice DYC(T8)type flame-proof explosion-proof fluorescent lamp of mounting mode are ceiling and pendant.



